Земельный участок 13 соток, Респ Крым, г Ялта, пгт Гаспра, Совхозный пер
0

Земельный участок 13 соток, Респ Крым, г Ялта, пгт Гаспра, Совхозный пер

Код: 4842 Код QD:1046650, 334
11 500 000 ₽

Описание

QD 1046650

ВНИМАНИЕ !!!

Предлагается к продаже земельный участок 13 соток, г Ялта, пгт Гаспра ул Совхозная 10

На участке расположен небольшой домик с адресом, пропиской.

Все коммуникации Вода ,электричество 15 кВт . газ непосредственно на участке.

В доме никто не прописан, задолженностей нет. Сделано межевание.

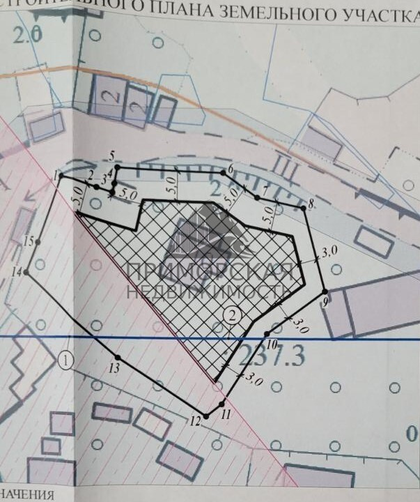
На участок получен ГПЗУ. с хорошим пятном застройки.

Документы РФ, полностью готовы к сделке.

Приобретая объект недвижимости через нас Вы получаете бесплатно полную финансовую безопасность,

Консультирование по юридическим вопросам и сопровождение сделки на всех этапах.

В процессе сделки мы также сможем помочь избежать лишних трат денег и времени, стрессовых ситуаций, получить

Более выгодное ценовое предложение, а также сэкономить на страховке и оценке при ипотеке.

Цена 11 500 000 рублей.

ЗВОНИТЕ ПРЯМО СЕЙЧАС!!!

Подробнее

Похожие предложения

ID 4107
720
1 250 000 ₽/cот
price 12 500 000 ₽
price Площадь: 10 сот. Газ / Электроэнергия / Вода / Канализация
Назначение: жилое